Etagenwohnung in zentraler Innenstadtlage von Werl

Objekt-Nr. 20054-2869 – Wohnung zur Miete in 59457 Werl

Ansprechpartner

Julia Koch

Telefon: 02922-97960
Telefax: 02922-979620

info@stamm-immobilien.de


  • Miete zzgl. NK
    420 €
  • Nebenkosten
    120 €
  • Miete inkl. NK
    540 €
  • Kaution
    840 €
  • Wohnfläche
    ca. 70 m²

Beschreibung

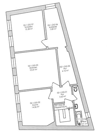
Die Wohnung verfügt über eine Fläche von ca. 70 m² und ist aufgeteilt in eine großzügige Küche, Wohnzimmer, Schlafzimmer und einem kleinen Durchgangszimmer, das als Arbeitszimmer genutzt werden kann. Der Holzboden sorgt für eine wohnliche Atmosphäre. Das Tageslichbad verfügt über eine Badewanne. Die Wohnung wird über eine Gas-Etagenheizung beheizt

Sonstiges

Wir bitten sich bei Interesse mit einer s c h r i f t l i c h e n Anfrage über unsere Homepage oder das Internetportal an uns zu wenden. Bitte beachten Sie, dass nur vollständige ausgefüllte Kontaktanfragen bearbeitet werden können (Name, Anschrift und Rufnummer). Wir senden Ihnen dann umgehend ein Exposé per E-Mail zu.

Lagebeschreibung

Die Wohnung befindet sich in zentraler Innenstadtlage von Werl. Einrichtungen des täglichen Bedarfs wie Einkaufsmöglichkeiten, Ärzte und Gastronomie befinden sich in unmittelbarer Nähe. Der Bahnhof liegt ca. 800 m entfernt. Bis zu den Autobahnen A44 (Kassel - Ruhrgebiet) und A445 (Werl - Bestwig) sind es ca. 2,5 km Fahrtstrecke.

Kosten

Miete zzgl. NK 420 €
Nebenkosten 120 €
Miete inkl. NK 540 €
Kaution 840 €

Ausstattung

Wohnfläche ca. 70 m²
Anzahl Wohneinheiten 3
Anzahl Zimmer 2
Baujahr 1910
Befeuerungsart Gas
Lage im Objekt (Etage) 1
Heizungsart Etagenheizung
Provisionspflichtig
verfügbar ab 01.05.2026
Zustand gepflegt

Energiebedarfsausweis

Endenergiebedarf 217,10 kWh/(m²*a)
Befeuerungsart Gas
Heizungsart Etagenheizung
Wesentlicher Energieträger Gas
Baujahr (Energieausweis) 1910
Energieeffizienzklasse G
Gültig bis 23.11.2030
Energieausweis Ausstellungsdatum 24.11.2020

0200400+


Objekt-Nr. 20054-2869 – Wohnung zur Miete in 59457 Werl

Zurück zu den Immobilienangeboten

Bewerten Sie Schwab Hausverwaltung e.K.